










Precise Building Scanning, 2D CAD Drawings & BIM-Ready 3D Models
Delivering precise building scanning and measured surveys, accurate 2D floor plans, elevations, and fully classified 3D models compatible with Revit and IFC workflows. Send photos, sketches or existing plans — we transform them into contractor-ready drawings and BIM models for architects, developers and contractors across Gloucestershire and the UK.
Accurate 2D Drawings


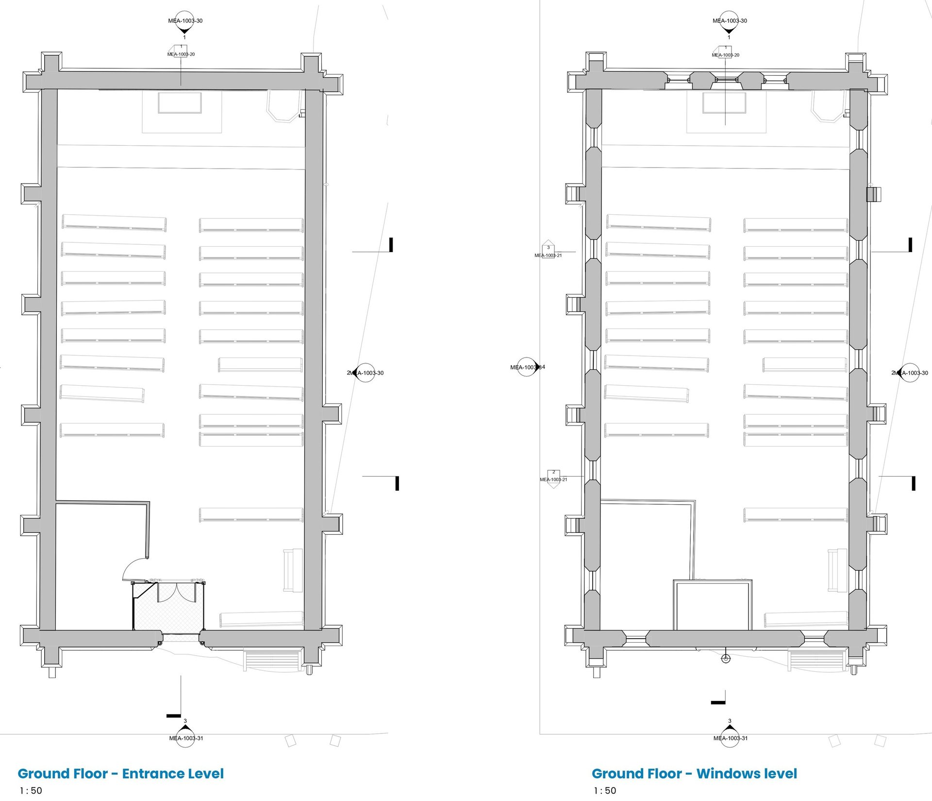
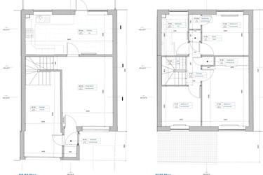
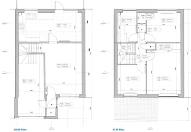
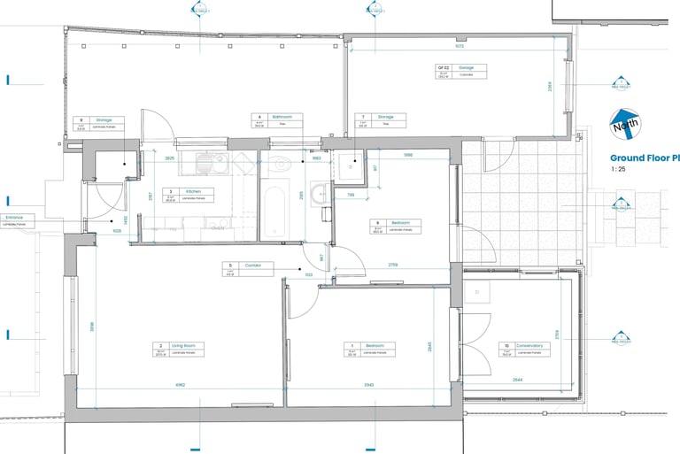
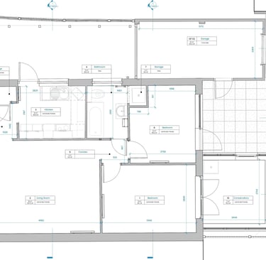
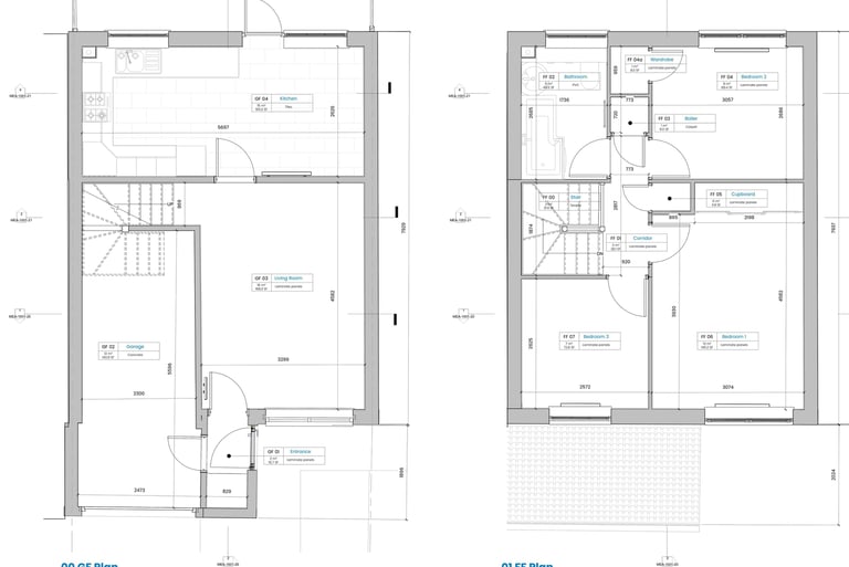
Scaled floor plans, sections and elevations in PDF and DWG formats — clear, dimensioned and ready for planning or construction.


Detailed 3D Models
BIM-ready models compatible with Revit, ArchiCAD and IFC workflows — useful for coordination, clash checks and detailed design.
Whether you have photos, sketches or measured drawings or a point cloud scan, we’ll deliver accurate 2D outputs and fully navigable 3D models. We work to your formats and standards so models slot into your workflow.


Measured Building Scanning & Point Cloud Capture
High-accuracy measured surveys and point cloud capture used to document existing buildings with precision, supporting design, coordination, and downstream 2D and 3D outputs.
Before and after: site photo of the same building
We capture precise measured data with scanning, then turn your photos, sketches, or survey data into professional 2D drawings, accurate 3D models and stunning renders. Use our outputs for planning, client presentations, contractor packs or BIM coordination.
Exceptional service and quality results.
Nikolai A.
"






Professional Scanning, 2D Drawings & 3D Models
High-quality measured building scanning, accurate 2D drawings, and detailed 3D models, and photo-realistic renders tailored to your project. From floor plans to BIM-ready outputs, we help architects, designers, and developers bring their ideas to life across Gloucestershire – including Gloucester, Cheltenham, Stroud, the Cotswolds and surrounding areas
Detailed 3D Models
We create BIM-ready 3D models that integrate seamlessly with Revit, ArchiCAD, or IFC workflows. Useful for design testing, coordination, and client presentations.
2D Drawings
Clear and reliable floor plans, elevations, and section drawings. Perfect for planning applications, renovations, or contractor packages. Delivered in PDF/DWG formats






The precision and detail of their scans transformed our project. Highly recommend!
James L.


★★★★★
Services
Based in Quedgeley, MEA Scanning serves Gloucestershire and surrounding areas. Our services include high-precision laser scanning, point cloud surveys, and tailored 3D BIM solutions for projects of any scale.
Technology
Precision
MEA.Scanning@Gmail.com
+44 7736 565645
© 2024. All rights reserved.
